لبنان
Select location
Plus iconبيع
جميع الفئاتDropdown arrow
Prime Shop for Sale – Dam w Farez, Tripoli (Street 32) REF#AS126213 0
شاهد صور
775,000 د. أ

Prime Shop for Sale – Dam w Farez, Tripoli (Street 32) REF#AS126213

الضم والفرز، طرابلس
منذ 3 أسابيع
المواصفات البارزة
ملكيّةمن قِبل الشركة
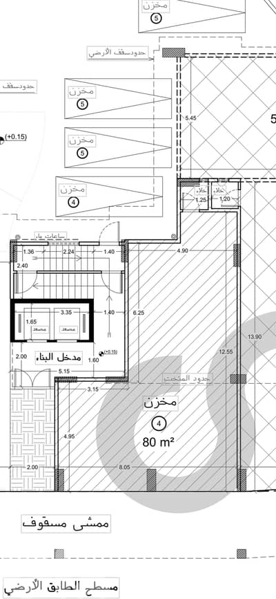
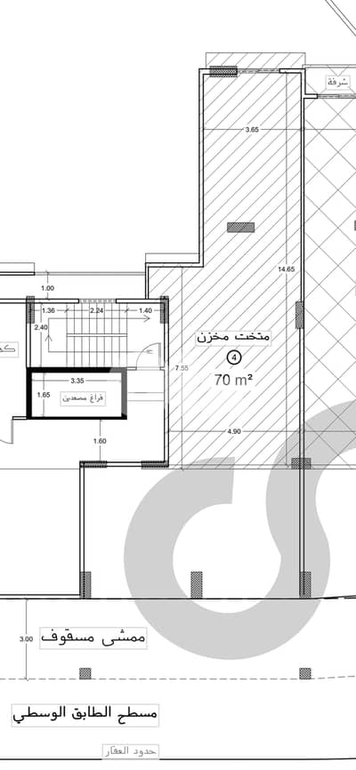
المساحة (م٢)150
نوع العقارمتجر
التفاصيل
الحالةجاهز للسكن
نوع البائعشركة
الوصف
Price: $775,000 + 2.5% Commission Prime Shop for Sale – Dam w Farez, Tripoli (Street 32) An exceptional opportunity to own a prime commercial shop in the heart of Dam w Farez, Tripoli. Located on the highly demanded Street 32, this property is perfect for restaurants, cafés, and high-traffic businesses. Property Features: • Total Area: 150 sqm • Shop Fronts: 2 wide and modern fronts for maximum exposure • Parking: 3 private parking spots • Storage: 2 underground storage rooms • Facilities: Centralized gas system + dedicated spot for electricity generator Why This Property? * Prime location on a bustling street * High visibility and accessibility * Fully equipped for F&B concepts For inquiries, call us : 71/000850 AS126213 محل تجاري للبيع – موقع استراتيجي في الضم والفرز، طرابلس (شارع 32) فرصة مميزة لتملّك محل تجاري في موقع حيوي ورئيسي في قلب الضم والفرز – شارع 32، من أنسب المواقع للمطاعم، المقاهي، أو أي نشاط تجاري بحاجة إلى حركة نشطة ورؤية واضحة. مواصفات العقار: • المساحة الإجمالية: 150 متر مربع • الواجهة: واجهتين عريضتين لعرض مثالي • مواقف سيارات: 3 مواقف خاصة • مستودعات: مستودعين تحت الأرض • خدمات: نظام غاز مركزي + مكان مخصص لمولد كهرباء لماذا هذا العقار؟ * موقع استراتيجي على شارع نشط وحيوي * واجهات عصرية تمنح رؤية ممتازة * تجهيزات مثالية لمشاريع المطاعم والـF&B السعر ومعلومات التواصل: السعر: ٧٧٥،٠٠٠ دولار + ٢. ٥٪ عمولة للاستفسار، الرجاء الاتصال على: 71/000850 AS126213 M
الموقع
لبنان
Map placeholder
رقم الإعلان 116574448
الإبلاغ عن هذا الإعلان
الإعلانات ذات الصلة
سلامتك تهمّنا
  • التقي بالبائع في مكان عام
  • لا تذهب بمفردك للقاء البائع ليرافقك أحد
  • تفقّد المنتج جيداً قبل الشراء
  • لا تدفع مسبقاً أو تحوّل المال قبل التأكّد من الغرض